■Q47 階段はどの位置に配置すればよいの?

リビング内階段、玄関ホール近くの階段、どちらであっても階段は建物の中央部に設けます。階段を囲んで部屋を振り分けられるので2階の廊下を減らすことができます。逆に階段を隅に設けると2階の端の部屋まで長い廊下が必要になります。

 

屋根の形状も階段の位置に影響します。最近はロフトにも使い勝手の良さで固定階段を設けることが多く、傾斜天井の一番高いところに階段で出られればアクセスし易くなります。屋根のかたちによってロフトの天井の一番高くなる位置が変わるので、階段の位置も変わります。

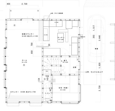
1階は店舗(飲食店)。2階は住居で、車庫に隣接した玄関から階段へ最短経路でつながる。
1階は店舗(飲食店)。2階は住居で、車庫に隣接した玄関から階段へ最短経路でつながる。
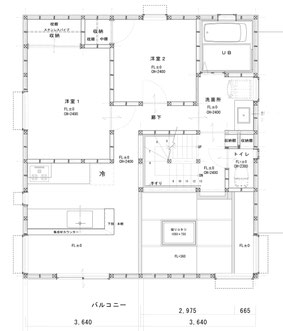
2階の居住空間は、階段を中心に回遊出来る。洗面所も動線の一部となっていて、脱衣の時にはカーテンを閉める。
2階の居住空間は、階段を中心に回遊出来る。洗面所も動線の一部となっていて、脱衣の時にはカーテンを閉める。
周り階段の上に小屋裏収納への直階段を重ねている。固定階段があることで物の運搬が格段にし易くなる。
周り階段の上に小屋裏収納への直階段を重ねている。固定階段があることで物の運搬が格段にし易くなる。

■Q48 吹き抜けはどのように配置すればよいの?

吹き抜けは主にリビングの上部に設けます。開放感が得られるとともに2階のホールに設けたデスクスペースや子供部屋の気配も伝わってきます。

 

隣家がせまっている敷地の場合、南東や南西の角に吹き抜けを設けて、2階の2面から光を取り入れることで明るいリビングにできます。この場合、夏季に日差しが入らないようにシェードなどの日除けを外部に設ける必要があります。シェードを開け閉めするためには2階の窓に面してキャットウォークが必要になります。