▶建物のかたちに関するQ&A


■Q19 平屋と総2階、下屋付き2階建てはどうやって決めるの?

経済性から言うと、同じ延床面積なら総二階のほうが平屋より安価に建てられます。屋根と基礎の大きさが半分で済むからです。無駄なく平屋が成立するのは延床面積15坪まででしょう。

 

下屋が生じるときは1階と2階に求められるスペースのバランスが悪いときです。たとえば1階に洗濯室と家族共用のウォークインクローゼットを設けたり、親と同居するため親の個室が1階に必要になった場合などです。

 

下屋が生じると屋根面積が増えるほか、2階外壁と1階屋根の取り合いが生じるなど雨仕舞いにも気を使う箇所が生じます。また断熱気密や通気の連続性の確保など設計や施工に気を使う箇所が増えてきます。なるべく2階にもスペースを振り分け、吹き抜けを設けて1・2階の床面積を揃えて総二階になるように計画しています。

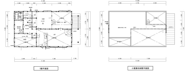
西側には玄関と収納、個室一つが下屋として張り出す。西側には浴室と、洗面所から出られるウッドデッキが下屋で張り出す。
西側には玄関と収納、個室一つが下屋として張り出す。西側には浴室と、洗面所から出られるウッドデッキが下屋で張り出す。
2階は長方形で、総2階に下屋が張り出した構造となっている。
2階は長方形で、総2階に下屋が張り出した構造となっている。

立面図で見ると下屋の張り出しが良く分かる。

■Q20 有効な下屋の設け方はないの?

小さな下屋であればコストへの影響が少なく、外観を整える効果もあるので採用することがあります。たとえば切妻屋根が掛かった総二階の妻面に玄関だけ下屋として出すと、総二階の部分とボリュームの対比が生まれ、外観が整って見えます。

 

玄関を下屋に出すだけでは1階のスペースが収まらない場合、浴室と洗面脱衣室をまとめて下屋とすることもあります。このほか車庫を下屋として付設することもあります。

 

なお、下屋を設ける場合、1階の屋根は1寸勾配に傾きを抑えます。見た目がよくなるとともに1階の屋根に面した部屋に掃き出し窓を設けると、屋根の上に出ることができる場合もあります。

下屋に2階掃き出しサッシから出られる例。普段は内側に手摺があり安全を確保している。
2階掃き出しサッシから下屋の屋根に出られる例。普段は内側に手摺があり安全を確保している。

■Q21 平屋にするのはどんなとき? 注意点は?

Q19で述べたように平屋は延床面積15坪を超えると費用対効果が悪くなります。実際には経済性よりも建て主の要望で選択されることが多いかたちです。

 

平屋のメリットは上下階の移動がないこと、庭(外部)と接するスペースが多いことです。建物の平面のかたちをL型やコの字型にして間に広いデッキを設けると庭と行き来しやすくなります。ただし、このかたちは大きな屋根と小さな屋根が取り合うので、納まりが難しく、コストも嵩みます。建物にある程度の大きさが無いとデッキ部が良い場所になりにくいこともあり、予算が潤沢にある場合以外はお薦めできません。

 

平屋は建物が大きくなると家事動線が長くなったり、子供部屋が離れすぎて様子がまったく分からないという懸念もあります。一般的な夫婦と子供1~2人の家庭では総2ニ階にまとめ、吹き抜けでLDKと子供部屋をつなぐプランが合理的だと思われます。

ほぼ施主の原案通りに建設された平屋建ての家。夫婦+子の3人が住む。
ほぼ施主の原案通りに建設された平屋建ての家。夫婦+子の3人が住む。